About hidden hills
Prime Site
A TYPE
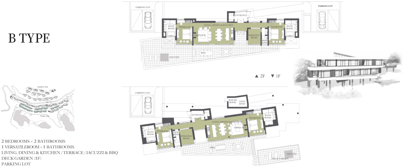
B TYPE
C TYPE
Summit Site
D TYPE
E TYPE
F TYPE
Information
배치도
분양면적
관심고객등록
관심고객등록
문의
02.3467.0230
B TYPE
누구에게도 간섭받지 않고 자연을 누릴 수 있는 넓은 야외 테라스로 개방감을 극대화하였다
눈앞에 넓게 펼쳐지는 페어웨이, 언덕 위 전망대처럼 공중에 떠 있는 듯한 넓은 거실과 식당, 누구에게도 간섭받지 않고 자연을 누릴 수 있는 넓은 야외 테리스가 개방감을 극대화하였다.
전면 전체가 창으로 계획되어, 넓은 테라스를 자유롭게 드나들며 사계절에 걸쳐 펼쳐지는 대자연의 파노라마를 누릴 수 있고 야외 자쿠지, 야외 라운지, 야외 식당 등으로 자연과 함께하는 삶을 누릴 수 있다.
시시각각 변화하는 아름다움, 넓은 전면 창을 통해 대자연의 장엄함이 한 폭의 풍경화처럼 펼쳐진다
침실과 외부조망이 가능한 욕실은 마스트존과 게스트존이 분리 되어있다.
언덕 위 전망대처럼 공중에 떠 있는 듯한 넓은 거실과 식당, 전면 창을 통해 끊임없이 변화하는 풍경은 아름다운 예술작품과 같이 당신의 삶을 풍요롭게 한다.
ㆍ 분양면적 : 60.08평 / 55.87평
ㆍ 웰리힐리CC 조망
ㆍ 전용면적 : 57.38평 / 53.36평
ㆍ 실내거실 벽난로
ㆍ 층 : 1층 (12세대) / 2층 (12세대)
ㆍ 세대별 전용출입구 및 주차장
ㆍ 세대 : 24세대
ㆍ 세내대 모든 공간 전면배치(침실,거실,주방,욕실)
ㆍ 서재, 침실 등으로 활용 가능한 다목적실