About hidden hills
Prime Site
A TYPE
B TYPE
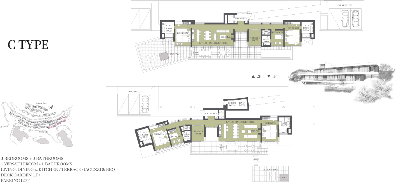
C TYPE
Summit Site
D TYPE
E TYPE
F TYPE
Information
배치도
분양면적
관심고객등록
관심고객등록
문의
02.3467.0230
C TYPE
실내외를 넘나드는 자유로운 삶과 다양한 라이프스타일을 누릴 수 있도록 계획되어 있다
전면 길이가 무려 38m에 달하며 모든 방에서 전면 창을 통해 페어웨이를 바라볼 수 있다. 2층 세대의 경우는 전면 테라스의 길이가 38m에 달한다.
이 평형은 실내외를 넘나드는 자유로운 삶과 다양한 라이프스타일을 누릴 수 있도록 계획되어있다.
입지, 전망, 평면의 구성 모든 측면에서 어디에서도 찾을 수 없는 최상의 조건을 가진 진정한 의미의 프라이빗 클럽하우스인 것이다.
38m의 넓은 테라스와 모든 것이 갖춰진 럭셔리 공간은 당신만이 누릴 수 있는 프라이빗 클럽하우스가 된다
단일 공간으로 통합된 넓은 거실과 식당은 현관 앞의 중정, 그리고 그 너머의 다목적에 걸쳐 하나의 공간으로 형성되며, 이 모든 공간들이 전면의 넓은 테라스로 연결되어있다.
침실은 모두 독립적인 욕실을 가지고 있으며, 마스터 침실과 게스트 침실이 건물 좌우에 분리 배치되어 최고의 프라이버시를 보장 받을 수 있다.
ㆍ 분양면적 : 71.44평 / 65.72평
ㆍ 웰리힐리CC 조망
ㆍ 전용면적 : 68.22평 / 62.77평
ㆍ 실내거실 벽난로
ㆍ 층 : 1층 (8세대) / 2층 (8세대)
ㆍ 세대별 전용출입구 및 주차장
ㆍ 세대 : 16세대
ㆍ 세내대 모든 공간 전면배치(침실,거실,주방,욕실)
ㆍ 서재, 침실 등으로 활용 가능한 다목적실