About hidden hills
Prime Site
A TYPE
B TYPE
C TYPE
Summit Site
D TYPE
E TYPE
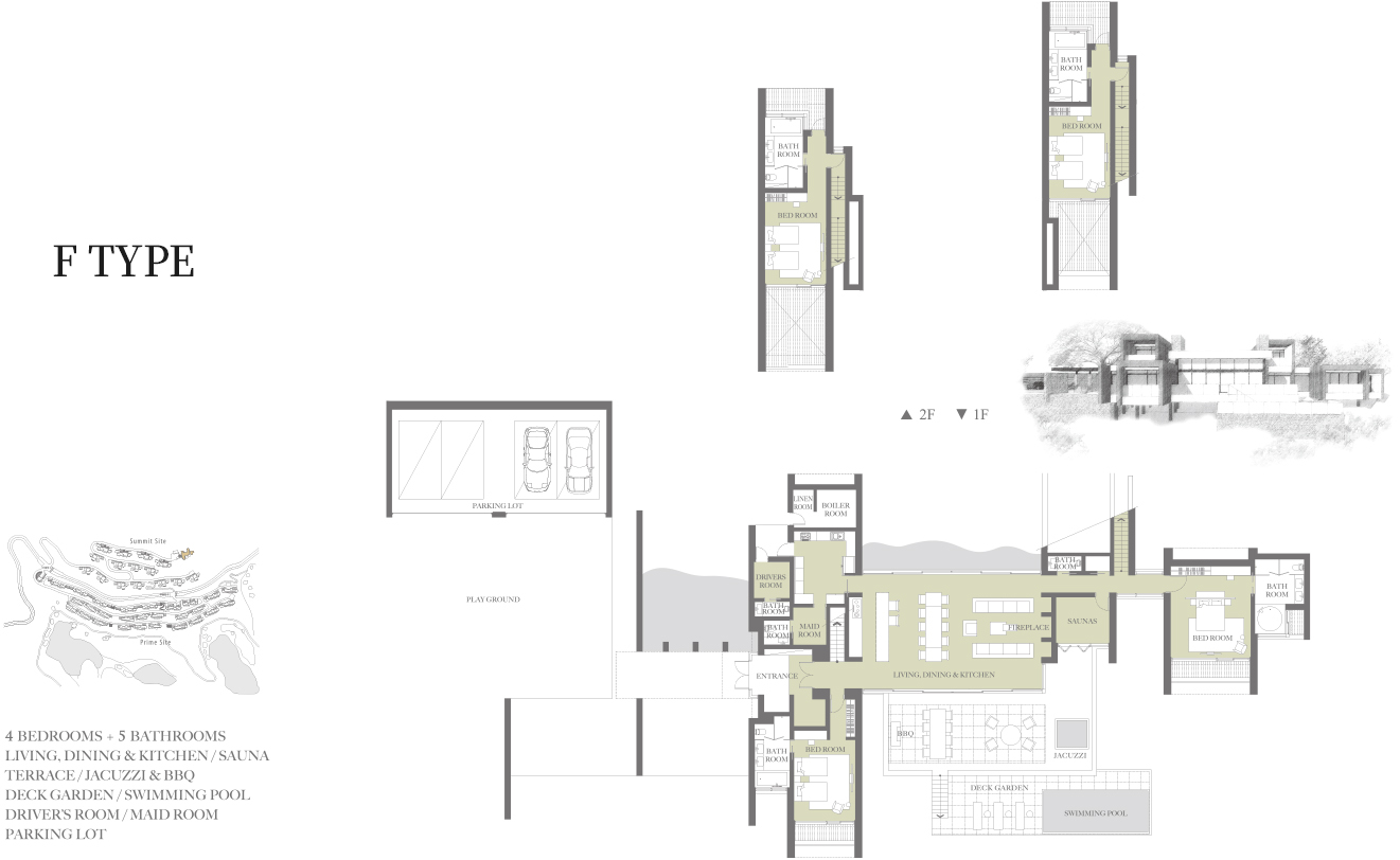
F TYPE
Information
배치도
분양면적
관심고객등록
관심고객등록
문의
02.3467.0230
F TYPE
뒤편으로는 울창한 숲이 뻗어 오르고, 앞으로는 광활한 대자인이 펼쳐진 산자락을 가로질러 넓은 브릿지 하나를 걸쳐 놓았다
앞뒤의 초대형 유리문을 활짝 열면, 넓은 테라스 너머로 골프장과 멀리 백덕산, 사자산, 덕어산 등 백두대간이 펼쳐지고, 뒤쪽으로는 산자락을 타고 훌러내리는 숲의 향기가 쏟아져 들어온다.
초대형 유리로 감싼 넓고 높은 브릿지 위에는 자연석을 쌓아올려 만든 벽난로와 소파, 긴 식탁, 그리고 대형 바가 있다.
야외 자쿠지와 한 레벨 아래쪽의 야외 수영장까지, 자연에서 경험할 수 있는 모든 종류의 라이프스타일을 이곳에서 누릴 수 있다.
광활한 자연조차 하나의 일상이 되는, 가장 럭셔리한 라이프스타일을 이곳에서 만날 수 있다
광활한 자연조차 하나의 일상이 되는, 가장 럭셔리한 라이프스타일을 이곳에서 만날 수 있다.
1층의 게스트룸은 마치울창한 숲 위에 올라타 있는 형상이며, 2층의 게스트룸은 북쪽으로 깊숙이 들어가 남쪽의 넓은 전용 테라스는 물론, 뒤쪽의 산자락까지 바라보인다.
ㆍ 분양면적 : 133.93평
ㆍ 웰리힐리CC 및 숲 조망
ㆍ 전용면적 : 133.25평
ㆍ 독립된 마스터룸 구성, 4개 룸의 독립적 배치
ㆍ 층 : 2층
ㆍ 실내거실 벽난로 및 사우나 룸
ㆍ 세대 : 1세대
ㆍ 넓게트인 공간과 독립적으로 활용 가능한 후정
ㆍ 전용 주차장(4대), 주차장앞 넓은 야외공간
ㆍ 세대내 모든 공간 전면배치(침실, 거실, 주방,욕실)